ca. 166 m2
GesamtwohnflächeWohnung 8
Preis: 760.000 €
ca. 166 m2
GesamtwohnflächePreis: 760.000 €


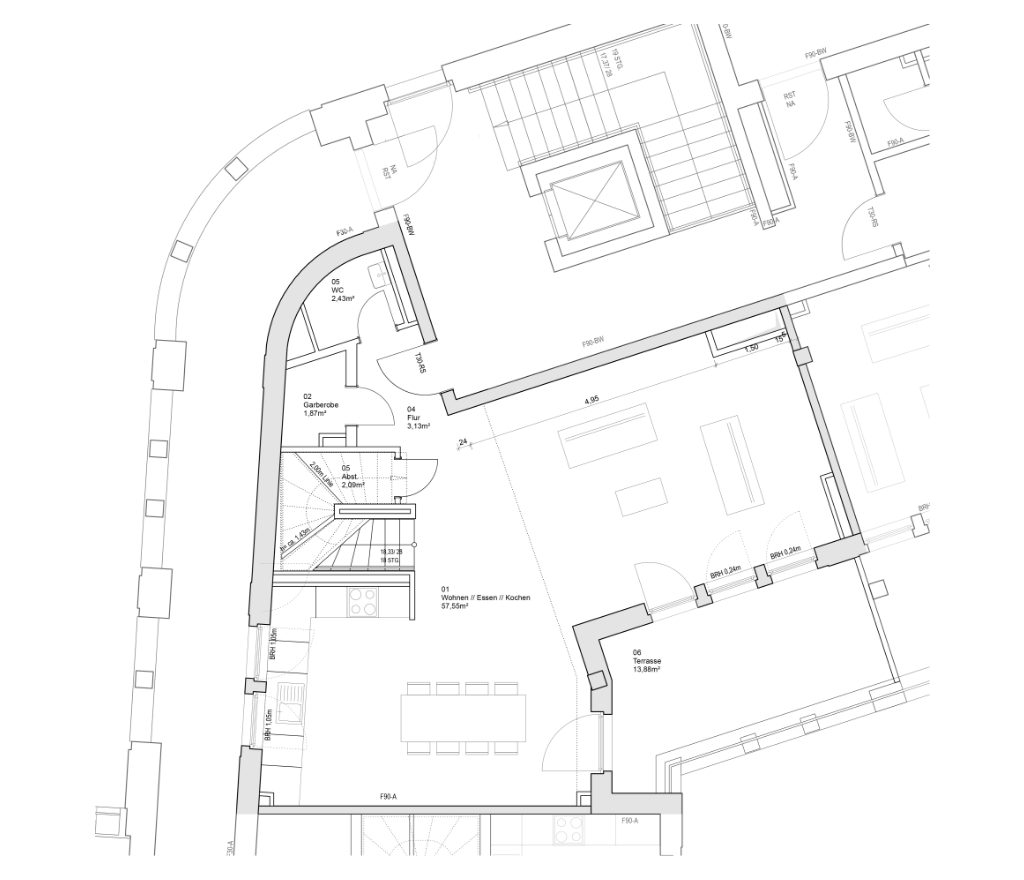
Auf mehr als 66 m² bietet die untere Ebene der Wohnung Wohlbehagen inmitten eines urbanen und lebendigen Stadtteils. Ein Aufzug befördert Sie in Ihr Treppenhaus, das weiter zur Wohnung führt. Elegant werden im kompakten Flur das kleine WC und die Garderobe integriert. Unmittelbar dahinter findet man sich im eindrucksvollen Wohn- und Essbereich wieder, der mit 57 m² das Highlight der Wohnung bildet. Der moderne Grundriss ermöglicht es, Wohnen, Essen und Kochen miteinander zu kombinieren und die vollendete Offenheit des Raumes zu genießen. An diesen schließt die 14 m² große, zum Innenhof ausgerichtete Terrasse an, die über den Wohn- und Essbereich durch zwei Türen erreichbar ist.
| Flur | 3,13 qm |
| Garderobe | 1,87 qm |
| WC | 2,34 qm |
| Wohnen/Essen | 57,55 qm |
| Abstellraum* | 2,09 qm |
| Terrase (13,88 qm / 50%) | 6,94 qm |
| Wohnfläche | ca. 74 qm |
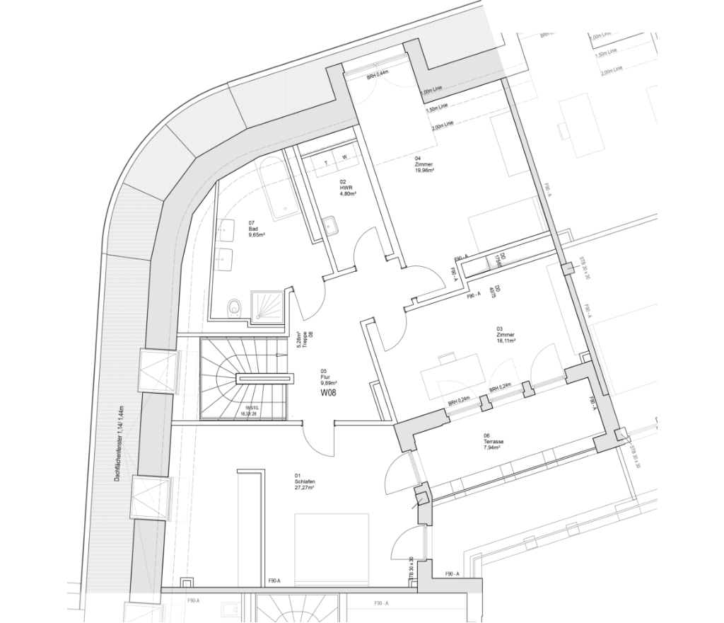
Über die moderne Stahl-Wangen-Treppe mit Massivholzstufen nach oben gelangt, betritt man den 10 m² großen Flur, der alle weiteren Zimmer erschließt; so z.B. das ca. 25 m² große Schlafzimmer. Dieses bietet viel Komfort, wozu das Ankleidezimmer – hinter einer Trennwand gelegen – seinen entscheidenden Teil beiträgt.
Dank der zwei weiteren Zimmer kann die Wohnung ganz an die Bedürfnisse der zukünftigen Eigentümer angepasst werden. Ganz gleich ob Arbeits-, Gäste- oder Kinderzimmer – hier ist jede Form der Nutzung denkbar. Dass eines der Zimmer zudem über einen 9 m² großen, dem Innenhof zugewandten Balkon verfügt, rundet das stimmige Bild dieser einzigartigen Stadtwohnung ab. Das großzügige Badezimmer mit Badewanne und Duschkabine sowie ein Hauswirtschaftsraum passen ebenfalls bestens ins Gesamtbild.
| Flur | 9,89 qm |
| Schlafzimmer | 27,27 qm |
| Zimmer 1 | 16,11 qm |
| Zimmer 2 | 19,96 qm |
| HRW | 4,80 qm |
| Bad | 9,65 qm |
| Terrasse (7,94 qm / 50%) | 3,97 qm |
| Wohnfläche | ca. 92 qm |
Erstklassige Materialien


Unsere Wohnungen bieten exklusive Ausstattung mit erstklassigen Materialien – edle Böden, hochwertige Küchen und stilvolle Bäder.
